202109/13
GMP潔凈車間的潔凈環境日常監測 隨著藥品監管力度的加大,市場準入要求的提升,藥品生產企業必須嚴控生產全過程,尤其是無菌藥品的生產全過程。根據中國 GMP(2010 年修訂)附錄“無菌藥品”第十條(應當按以下要...
202109/10
無塵凈化車間中風機盤管的分類和結構 1.無塵凈化車間中風機盤管的分類 為滿足不同場合的應用需求,風機盤管種類有臥式暗裝(帶回風箱)風機盤管、臥式明裝風機盤管、立式暗裝風機盤管、立式明裝風機盤管、卡式...
202109/09
制藥凈化車間潔凈環境系統確認 制藥凈化車間潔凈環境系統確認主要是性能確認,為證明空調系統能按照相應的技術要求有效穩定(重現性好)地運行且能持續保持潔凈室內的潔凈環境,需對潔凈環境進行靜態測試和動態測...
202109/08
生物安全實驗室建設歷程 一、 生物安全實驗室建設管理 我國高等級生物安全實驗室建設主要涉及如下幾個主管部門:國家發展和改革委員會和科技部負責項目的規劃、立項和審批;環保部門負責項目環評,國家衛生健康...
202109/07
潔凈室的風機盤管工作原理 1、潔凈室的風機盤管組成 潔凈室的風機盤管主要由風機、換熱盤管和機殼組成,按風機盤管機外靜壓可分為標準型和高靜壓型,風機一般采用雙進風前彎形葉片離心風機,電機采用電容式 4 ...
202109/06
GMP凈化車間 空調凈化系統的技術要求 GMP凈化車間的凈化空調是大型空調中的一種,相比于其他普通空調系統,它的控制要求更為嚴格,不僅對空氣的溫度、濕度和風量有嚴格要求,還對空氣中所含塵埃粒數、細菌濃...
202109/03
潔凈工程空調凈化系統的分類 (1)按照空氣流的利用方式分類 GMP潔凈工程的空調凈化系統按照空氣流的利用方式,可劃分為全新風系統、一次回風空調系統、二次回風空調系統和嵌套獨立空氣處理單元的空調系統。 ...
202109/02
無菌實驗室的純水系統 在當今的無菌實驗室中,水環境作為絕大多數無菌實驗室的最基本環境,在無菌實驗室占的地位非常重要,水質往往決定了很多實驗結果的真實性,可重復性,對實驗來說,通常要求純水中的雜質元素和化...
202109/01
GMP車間空調系統的基本構成 GMP車間空調凈化系統是一個能夠通過控制溫度,相對濕度、空氣運動與空氣質量(包括新鮮空氣、氣體微粒和氣體)來調節環境的系統的總稱。GMP車間的空氣凈化系統能夠降低或升高溫度,減...
202108/31
不同凈化車間的空調系統的選用 不同的凈化車間,不同用戶和不同的應用環境對空氣調節系統有不同的需求,這就需要結合空調系統的特點及適用條件、凈化車間用途及用戶需求綜合考慮空調系統的選用。 1.集中式空...
202108/30
工業潔凈室的技術要求 潔凈室是指內部塵埃粒子濃度受控且分級的房間,此房間是按照一定的方式設計、建造和運行的,以控制房間內粒子的引入、產生和滯留。 (2)潔凈室的基本構成 潔凈室一般由吊頂系統...
202108/27
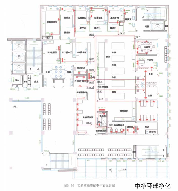
潔凈實驗室給排水系統是在建筑物給排水的基礎上特殊設計的給排水系統,它具有非標準的給排水設計及多種變化的布局。 潔凈實驗室實驗室給排水系統的設計工作是在建筑工程設計前來完成的。它與建筑工程,...
202108/26
醫學實驗室照明設計安裝 1. 醫學實驗室照明設備數量 醫學實驗室所需照明設備的數量由以下因素決定;工作的類型、工作臺的顏色,工作室天花板和墻壁的顏色、固定照明與工作臺面之間的距離、需要照明空間的...
202108/25
潔凈實驗室供電系統 潔凈實驗室建筑內部有各種類型的實驗室及儀器設備,供電系統除了維持潔凈實驗室特定的環境用電外,還要滿足現有及未來增加的各種儀器的特殊用電要求,對于離心機、冷柜、低溫冰箱帶壓縮...
202108/24
無菌實驗室氣流組織形式 無菌實驗室必須保持一定的溫度梯度和氣流狀況。通常情況下,無菌實驗室內相對走廊以及非實驗區保持負壓,氣流從低危區流向高危區,整棟建筑相對于外界必須保證正壓以防止有害的未經過過...
202108/23
無塵實驗室空調系統設計的考慮因素 無塵實驗室空調系統設計需要考慮哪些因素?下面中凈環球凈化帶大家來了解。 無塵實驗室空調系統必須滿足實驗室研究要求。除對溫度、濕度需嚴格控制外,需要足夠的通風量處
202108/20
潔凈醫學實驗室空調系統的分類與特點 潔凈醫學實驗室建筑有別于普通建筑,不同的實驗室對溫度、濕度、壓強、潔凈度等參數有不同的要求,而且不同實驗室之間的氣流不能交叉污染,實驗區的不能流向辦公區,因此,...
202106/25
醫學實驗室空間設計 醫學實驗室空間設計須功能分區科學、布局流程合理、潔污路線清楚、預留發展空間、合理利用面積、確保工作安全。布局流程,實際上設計時須考慮路徑最短,即讓工作人員走短的路,才能體現大功效...
202105/20
單風道型變風量空調系統 單風道型變風量空調系統由單風道型變風量末端裝置、送風機采用調速方式的集中式空調機組、風管系統和控制系統組成。單冷型單風道變風量空調系統,一次風口和送風口之間形成的風道是末端裝...
202105/13
凈化工程變風量空調系統的設計和控制 變風量風口使用方便,調節方式靈活,實現了變風量末端調節,節約能源,且維修量小;應根據應用環境中空調房間的設計最大風量確定變風量風口的型號,布置變風量風口時,到達墻...





掃一掃關注官方微信
0755-29103270